Проект монолитного загородного дома в стиле Минимализм, располагающего в гольф деревне. Проект дома нужно было сделать для семьи из трех человек с возможностью все сезонного проживания. В доме нужно было запроектировать кухню-гостиную, детскую и гостевую комнаты, мастер спальню с гардеробной и ванной, технические помещения и сауну с комнатой отдыха.

Роман Коротков Россия, Санкт-Петербург
Архитекторы

PROFI
3212
8
 
 
 

Вилла в гольф-клубе «Земляничные поляны»

Россия, Ломоносов

Проект монолитного загородного дома в стиле Минимализм, располагающего в гольф деревне. Проект дома нужно было сделать для семьи из трех человек с возможностью все сезонного проживания. В доме нужно было запроектировать кухню-гостиную, детскую и гостевую комнаты, мастер спальню с гардеробной и ванной, технические помещения и сауну с комнатой отдыха.

Автор проекта: Архитекторы Роман Коротков
Информация
Загородный дом в стиле Минимализм
  • Тип файла: Фото
90
0
Поделиться
Автор проекта: Архитекторы Роман Коротков
Информация
Загородный дом в стиле Минимализм
  • Тип файла: Фото
91
0
Поделиться
Автор проекта: Архитекторы Роман Коротков
Информация
Загородный дом в стиле Минимализм
  • Тип файла: Фото
95
0
Поделиться
Автор проекта: Архитекторы Роман Коротков
Информация
Загородный дом в стиле Минимализм
  • Тип файла: Фото
89
0
Поделиться
Автор проекта: Архитекторы Роман Коротков
Информация
Загородный дом в стиле Минимализм
  • Тип файла: Фото
91
0
Поделиться
Автор проекта: Архитекторы Роман Коротков
Информация
Генплан участка
  • Тип файла: Документация
94
0
Поделиться
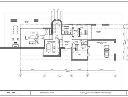
Автор проекта: Архитекторы Роман Коротков
Информация
План первого этажа
  • Тип файла: Документация
88
0
Поделиться
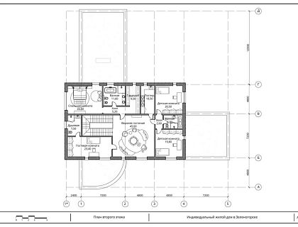
Автор проекта: Архитекторы Роман Коротков
Информация
План второго этажа
  • Тип файла: Документация
94
0
Поделиться

Понравилась работа? Хотите реализовать нечто подобное?

Заполните форму ниже и автор работы сам свяжется с вами для обсуждения деталей.

Даю согласие на обработку персональных данных и согласен с правилами сайта