Проект современной виллы в Карелии. Участок располагается на берегу озера среди соснового леса, поэтому структуру дома мы спланировали таким образом, чтобы из всех основных помещений виллы открывался вид на озеро. Конструкция стен и перекрытий — монолитный железобетон, кровля плоская. Общая площадь дома 625 м.кв.

Роман Коротков Россия, Санкт-Петербург
Архитекторы

PROFI
4074
11
 
 
 

Загородный дом в Карелии

Россия, Лахденпохья

Проект современной виллы в Карелии. Участок располагается на берегу озера среди соснового леса, поэтому структуру дома мы спланировали таким образом, чтобы из всех основных помещений виллы открывался вид на озеро. Конструкция стен и перекрытий — монолитный железобетон, кровля плоская. Общая площадь дома 625 м.кв.

Автор проекта: Архитекторы Роман Коротков
Информация
Загородный дом в Карелии
  • Тип файла: Фото
113
0
Поделиться
Автор проекта: Архитекторы Роман Коротков
Информация
Загородный дом в Карелии
  • Тип файла: Фото
104
0
Поделиться
Автор проекта: Архитекторы Роман Коротков
Информация
Загородный дом в Карелии
  • Тип файла: Фото
119
0
Поделиться
Автор проекта: Архитекторы Роман Коротков
Информация
Загородный дом в Карелии
  • Тип файла: Фото
102
0
Поделиться
Автор проекта: Архитекторы Роман Коротков
Информация
Загородный дом в Карелии
  • Тип файла: Фото
95
0
Поделиться
Автор проекта: Архитекторы Роман Коротков
Информация
Загородный дом в Карелии
  • Тип файла: Фото
102
0
Поделиться
Автор проекта: Архитекторы Роман Коротков
Информация
Загородный дом в Карелии
  • Тип файла: Фото
102
0
Поделиться
Автор проекта: Архитекторы Роман Коротков
Информация
Загородный дом в Карелии
  • Тип файла: Фото
95
0
Поделиться
Автор проекта: Архитекторы Роман Коротков
Информация
Загородный дом в Карелии
  • Тип файла: Фото
103
0
Поделиться
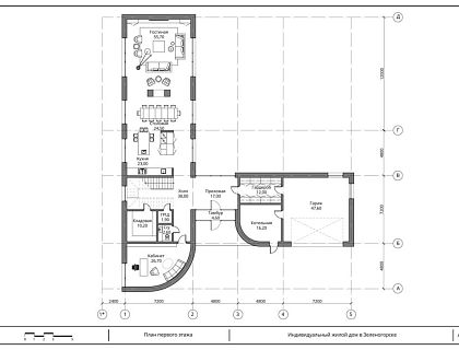
Автор проекта: Архитекторы Роман Коротков
Информация
План первого этажа
  • Тип файла: Документация
83
0
Поделиться
Автор проекта: Архитекторы Роман Коротков
Информация
План второго этажа
  • Тип файла: Документация
82
0
Поделиться

Понравилась работа? Хотите реализовать нечто подобное?

Заполните форму ниже и автор работы сам свяжется с вами для обсуждения деталей.

Даю согласие на обработку персональных данных и согласен с правилами сайта