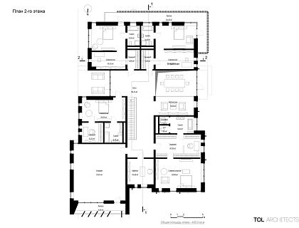
Вилла в Тимошкино / коттеджный посёлок Шато Соверен / Московская область Архитектор Вадим Тополев Основной задачей при проектировании дома была смена уклада жизни семьи в мегаполисе на более спокойную жизнь за городом. ТЭП Площадь участка 2145 кв. м Площадь застройки 742 кв. м из в неё: Площадь пятна застройки дома 484 кв. м Площадь террасы 225 кв. м Общая площадь дома 827.6 кв. м. Официальный сайт студии → tolarch.ru

Вадим Тополев Россия, Москва
Архитекторы

PROFI
2760
8
 
 
 

Вилла в Тимошкино / коттеджный посёлок Шато Соверен / Московская область

Россия

Вилла в Тимошкино / коттеджный посёлок Шато Соверен / Московская область Архитектор Вадим Тополев Основной задачей при проектировании дома была смена уклада жизни семьи в мегаполисе на более спокойную жизнь за городом. ТЭП Площадь участка 2145 кв. м Площадь застройки 742 кв. м из в неё: Площадь пятна застройки дома 484 кв. м Площадь террасы 225 кв. м Общая площадь дома 827.6 кв. м. Официальный сайт студии → tolarch.ru

Автор проекта: Архитекторы Вадим Тополев
Информация
Вилла в Тимошкино / коттеджный посёлок Шато Соверен / Московская область Архитектор Вадим Тополев
  • Тип файла: Документация
249
0
Поделиться
Автор проекта: Архитекторы Вадим Тополев
Информация
Вилла в Тимошкино / коттеджный посёлок Шато Соверен / Московская область Архитектор Вадим Тополев
  • Тип файла: Документация
239
0
Поделиться
Автор проекта: Архитекторы Вадим Тополев
Информация
Вилла в Тимошкино / коттеджный посёлок Шато Соверен / Московская область Архитектор Вадим Тополев
  • Тип файла: Документация
244
0
Поделиться
Автор проекта: Архитекторы Вадим Тополев
Информация
Вилла в Тимошкино / коттеджный посёлок Шато Соверен / Московская область Архитектор Вадим Тополев
  • Тип файла: Документация
227
0
Поделиться
Автор проекта: Архитекторы Вадим Тополев
Информация
Вилла в Тимошкино / коттеджный посёлок Шато Соверен / Московская область Архитектор Вадим Тополев
  • Тип файла: Документация
245
0
Поделиться
Автор проекта: Архитекторы Вадим Тополев
Информация
Вилла в Тимошкино / коттеджный посёлок Шато Соверен / Московская область Архитектор Вадим Тополев
  • Тип файла: Документация
241
0
Поделиться
Автор проекта: Архитекторы Вадим Тополев
Информация
Вилла в Тимошкино / коттеджный посёлок Шато Соверен / Московская область Архитектор Вадим Тополев
  • Тип файла: Документация
234
0
Поделиться
Автор проекта: Архитекторы Вадим Тополев
Информация
Диплом 1-ой степени НОПРИЗ / Архитектор Вадим Тополев
  • Тип файла: Фото
244
0
Поделиться

Понравилась работа? Хотите реализовать нечто подобное?

Заполните форму ниже и автор работы сам свяжется с вами для обсуждения деталей.

Даю согласие на обработку персональных данных и согласен с правилами сайта