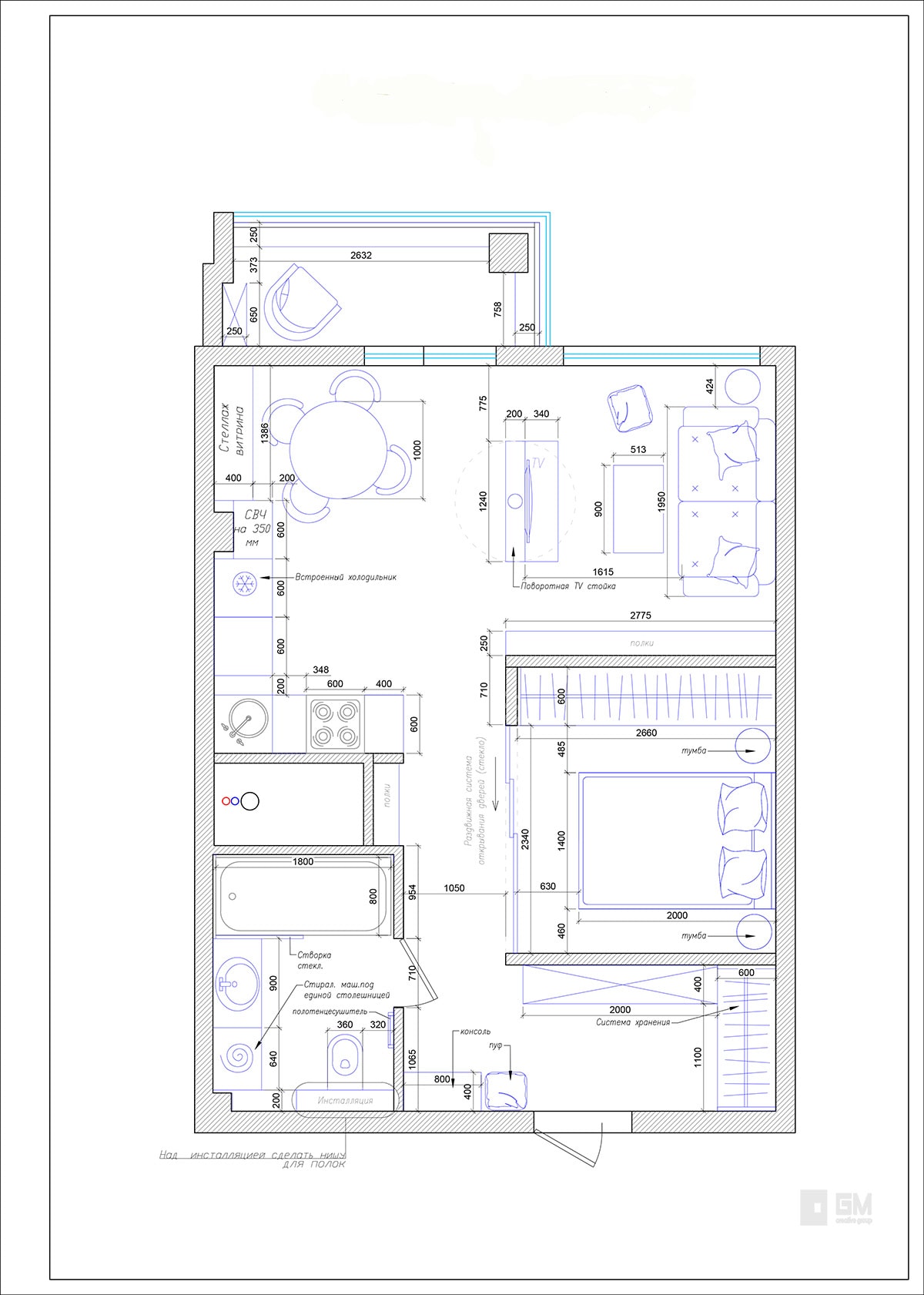
Планировка
Документация интерьера, Планировка площадью 43 кв.м. в стиле Скандинавский. Проект Дизайн компактной и вместительной однокомнатной квартиры в скандинавском стиле - Дизайн однокомнатной квартиры 43 кв. м — всё в одном с открытым характером, Автор проекта: Дизайнеры Gminterior Дизайнстудия

Дизайн компактной и вместительной однокомнатной квартиры в скандинавском стиле - Дизайн однокомнатной квартиры 43 кв. м — всё в одном с открытым характером

Проект: Дизайн однокомнатной квартиры 43 кв. м — всё в одном с открытым характером

Разместил(а): Gminterior Дизайнстудия

Дата размещения: 29 мая 2018

Раздел: Интерьер

Тип файла: Документация

Помещение: Планировка

Общая площадь: 43 кв.м.

Стилистика: Скандинавский

Цвет:

Вы участвовали в проекте?

Вопросы и комментарии
Вопросов и комментариев пока нет.